HELLO PEOPLE, WELCOME TO

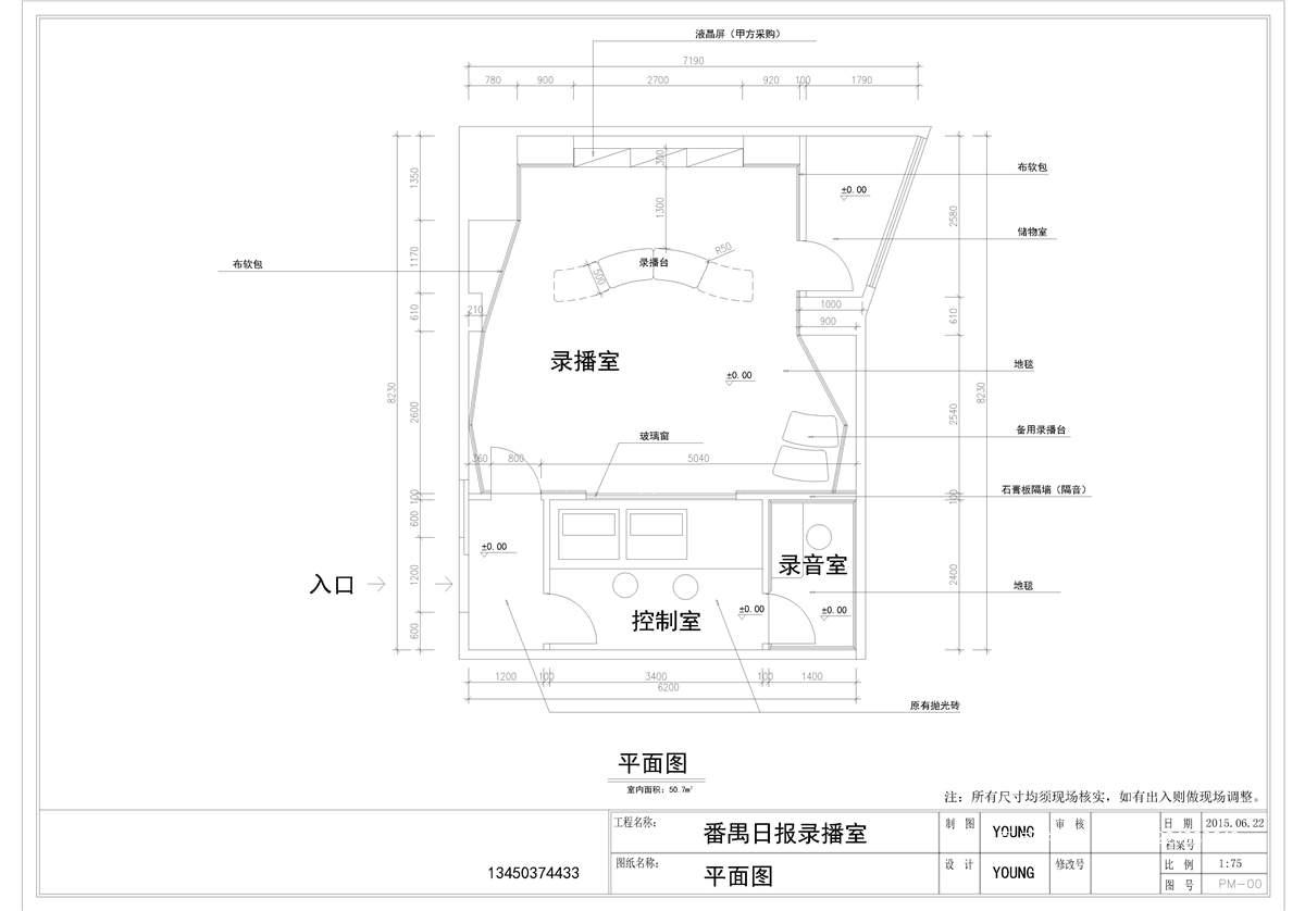
番禺日报录播室

精彩案例

番禺日报录播室

广州吾邦牛设计有限公司
电话:13450374433 QQ:2664383648
E-mail: designyoung@foxmail.com
粤ICP备17148966号